ItalianoEnglish

Ultime Acquisizioni

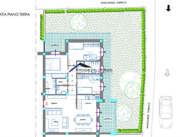
Casa singola In Vendita
170 m2 3 Camere 1 Bagni 4 Box/Posti auto

Indipendente tutta su un piano con terreno Castelnuovo Magra

Ai piedi delle Colline del Sole immersa in ca 1400 mq di giardino, villino indipendente di ampissima metratura, distribuito tutto al piano terra, unico piano senza barriere architettoniche. L'immobile...

330.000 EUR
Appartamento In Vendita
110 m2 2 Camere 2 Bagni 1 Box/Posti auto

APPARTAMENTO CON AMPIA TERRAZZA E POSTO AUTO Lerici

Romito di Arcola , a tre km da LERICI. In località Guercio , si vendono 2 appartamenti in pentafamiliare , con ingressi indipendenti e posto auto privato capace di contenere 2 automobili. APPARTAMENTO...

149.000 EUR
Appartamento In Vendita
90 m2 2 Camere 1 Bagni 1 Box/Posti auto

APPARTAMENTO CON AMPIA TERRAZZA E POSTO AUTO Lerici

Romito di Arcola a 3 chilometri da Lerici . In località Guercio , si vendono 2 appartamenti , con ingressi indipendenti e posto auto privato capace di contenere 2 automobili. APPARTAMENTO CON TERRAZZA...

149.000 EUR
4 o più locali In Affitto
90 m2 2 Camere 1 Bagni 2 Box/Posti auto

SARZANA ZONA NAVE Sarzana

Appartamento in pentafamiliare al piano terra con giardino privato e posto auto . L' immobile è ubicato in ottimo contesto e si presenta suddiviso in : sala con cucina a vista, 2 camere da letto, bagno,...

700 EUR / mese
2 locali In Vendita
55 m2 1 Camere 1 Bagni 1 Box/Posti auto

OTTIMO BILOCALE DI NUOVA EDIFICAZIONE Sarzana

IN ZONA NAVE , ottimo investimento per bilocale sito al piano primo ed ultimo , senza ascensore, in paazzina di recente edificazione. Tetto in legno coibentato, finiture di elevata qualità. Composizione...

112.000 EUR
Laboratorio In Affitto
450 m2

CAPANNONE USO LABORATORIO/DEPOSITO Sarzana

Sarzana In ottimo contesto pianeggiante e vicino all'autostrada, si affitta capannone uso laboratorio/magazzino di circa 450 mq , in ordine. Richiesta €. 3500,00 mensili

3.500 EUR

Ultime news

08/09/2024
 Dopo un periodo di rodaggio, entra in vigore dal 1° settembre 2024 la banca dati delle strutture ricettive (BDSR), piattaforma tramite la quale sarà possibile richiedere il CIN (Codice identificativo nazionale) da utilizzare per poter esercitare l’attività di affitto breve. Vediamo insieme nel dettaglio in cosa consiste la nuova normativa per le locazioni turistiche brevi. Il CIN per gli affitti brevi, cos’è e come funzionaCIN affitti brevi, fasi ...
10/05/2024
AA) Acquisto da imprese di costruzione/ristrutturazioneLa compravendita da imprese di costruzione o di ristrutturazione, ad eccezioni di particolari fattispecie, è soggetta ad IVA, che viene corrisposta direttamente alla società venditrice.L’aliquota IVA da applicarsi sul prezzo della vendita sarà:– pari al 10 % in assenza di agevolazioni prima casa;– pari al 4% nel caso in cui vengano richieste le agevolazioni prima casa.Lo stesso trattamento tributario è applicato all’assegnazione di case a...
10/05/2024
 Lista documenti da fornire per una  compravendita immobiliareAcquirenteI. Persone fisiche:Documento d’identità (segnalando eventuali cambi di residenza)Codice fiscaleEstratto atto di matrimonio o certificato di stato libero o di unione civileCopia di eventuali convenzioni patrimoniali o accordi di convivenzaPer cittadini extra UE: copia del permesso di soggiorno o del visto d’ingresso. II. Persone giuridiche:Copia di un documento d’identità del rappresentanteDenominazione legale...
10/05/2024
Come cambia la cedolare secca  sugli affitti brevi 31 GENNAIO 2024La cedolare secca alza le pretese sugli affitti brevi. Con la manovra 2024 cambiano infatti le regole dell’imposta sostitutiva che con un unico versamento soppianta l’IRPEF e tutto il corredo a latere di addizionali, bollo e registro normalmente dovuti sui contratti di locazione, a meno che appunto non si opti per l’imposta forfetaria. Le nuove disposizioni vigenti dal 1° gennaio 2024 intervengono in primis sull’aliquot...
15/10/2020
 Per il pagamento delle imposte relative alla registrazione degli atti privati (preliminari di compravendita, contratti di comodato, ecc.) si usa, a partire da lunedì 2 marzo 2020, il mod. F24 in luogo dell’attuale modello F23. L’Agenzia delle Entrate, con la risoluzione 9 del 20.2.2020 ha infatti istituito i codici tributo da utilizzare per i versamenti dei tributi mediante i modelli F24 e le istruzioni per la compilazione dei modelli di pagamento. Il versamento, con il modell...
Cookie preference