ItalianoEnglish
12 Bagni 700 m2
Caratteristiche principali
Codice
V007631
Prezzo
300.000 EUR
Classe
NA
Locali
30
Altre caratteristiche e accessori
Grado
Signorile
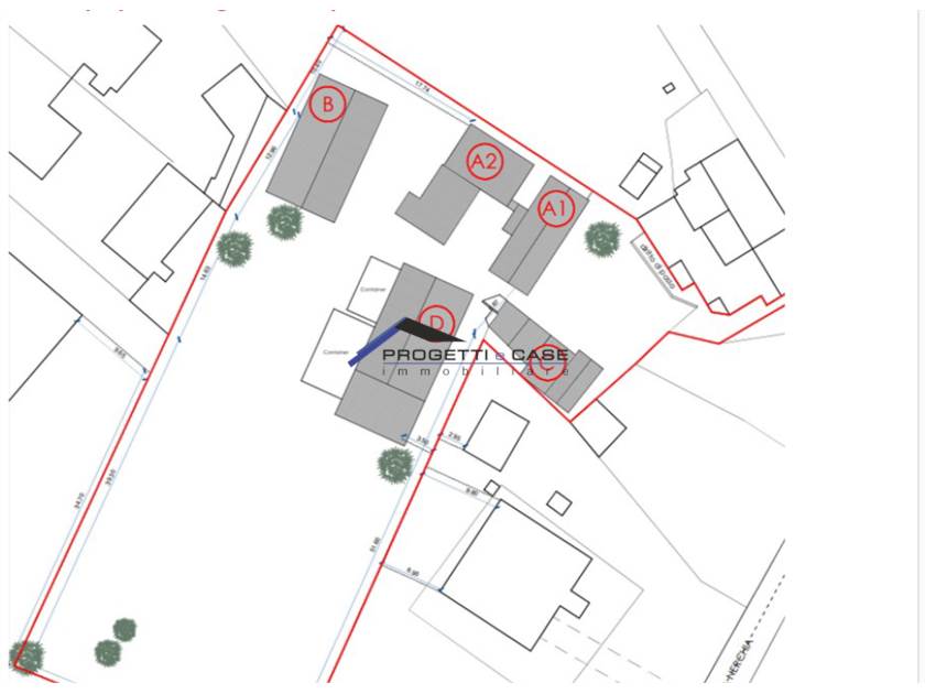
In ottimo contesto, assolato, urbanizzato e pianeggiante, si vende lotto di terreno con progetto approvato per la costruzione di 6 villette oppure 8 appartamenti e 2 VILLE .
Attualmente il progetto prevede 3 bifamiliari terratetto con giardini privati.
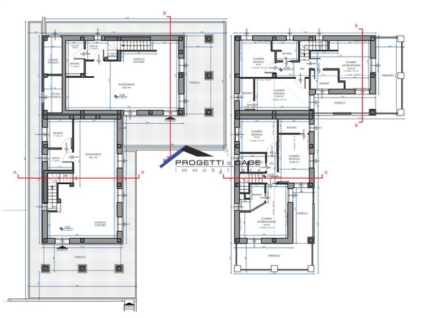
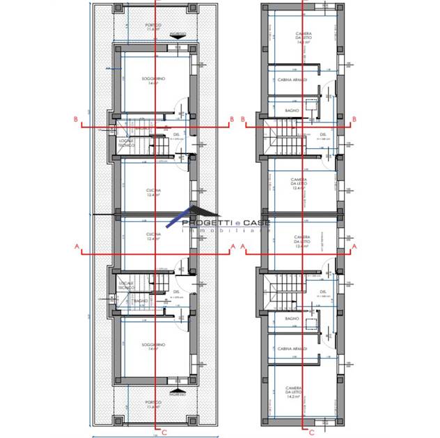
2 bifamiliari (BLOCCO A e B) di circa 102 mq oltre a giardini, disposte su 2 livelli fuori terra e composte da : soggiorno, cucina abitabile, bagno e ripostiglio al piano terra, 2 camere, cabina armadi e servizio al piano primo (no mansardato).
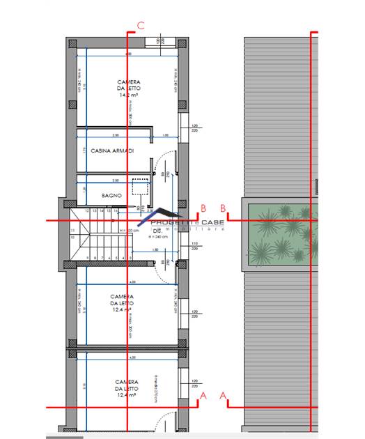
1 bifamiliare (BLOCCO C) di circa 132 mq ciascuna , oltre a giardino distribuite in : soggiorno con cucina a vista, bagno, antibagno e ripostiglio al piano terra; Piano primo:Tre Camera da letto, tre bagni e disimpegno.
Possibilità di creare facilmente 8 appartamenti con ingressi indipendenti.
Si accetta permuta.
Maggiori informazioni in agenzia su appuntamento .

Cookie preference