ItalianoEnglish
3 Camere 2 Bagni 2 Box/Posti auto 135 m2
Caratteristiche principali
Codice
V007882
Prezzo
450.000 EUR
Classe
A4 (40)
Locali
7
Mq Giardino
500
Altre caratteristiche e accessori
Stato Immobile
Ottimo
Grado
Signorile
Orientamento
Sud Ovest
Lati Liberi
4
Giardino
Privato
Riscaldamento
Autonomo
Tipo Impianto
Pavimento
Fonte Energetica
Elettrico
Acqua Calda
Autonoma
Raffrescamento
Split
Infissi
Metallo Triplo Vetro
Serramenti
Nuovo
Accesso Disabili
Nessuna Barriera
Accessori
Impianto Fotovoltaico
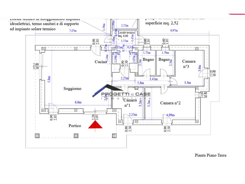
Sarzana,località Sarzanello,Villa monofamiliare di nuova costruzione disposta su di un unico livello senza taverne o mansarde.
L'immobile è costruito in classe A4 e presenta soluzioni innovative negli impianti e nelle finiture.
Consta di : giardino privato e recintato con posti auto all' interno, portico, ampia zona living, 3 camere da letto e doppi servizi. Moderna architettura personalizzabile in ogni dettaglio
.Riscaldamento a pavimento e raffreddamento a parete.
Possibilità di piscina.
RECUPERO FISCALE DI €.48.000,00 in dieci anni.
Richiesta€.450.000,00



Cookie preference